Featured Projects:

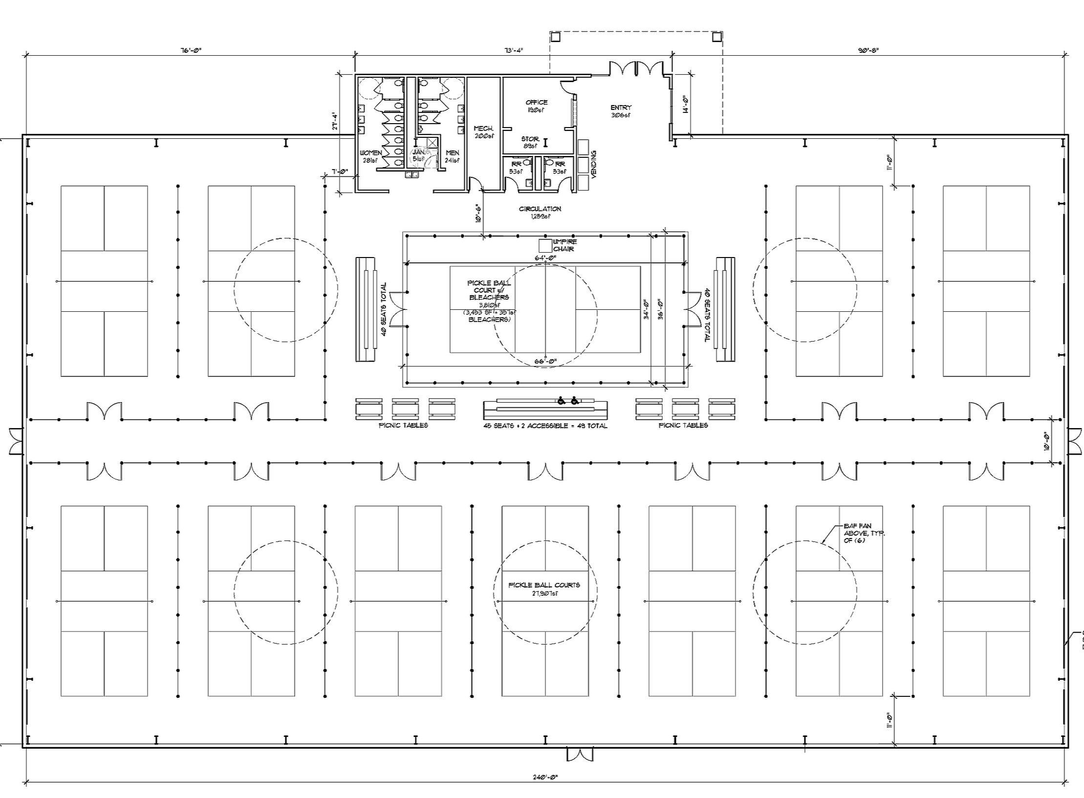
Mock Park Indoor Pickleball & Community Sports Park - Columbus, OH

WellyPatt Engineering provided MEP design services for the City of Columbus’ Mock Park Pickleball and Community Sports Park improvements. This project was originally planned to be a three-season, 10 court, 34,688 sq ft facility. Shortly after the design phase started the plan was changed to a year-round, fully climate controlled space requiring our full scope of design services including power distribution, lighting and controls, mechanical, and plumbing design. Our team worked closely with Schorr Architects and EMH&T Civil Engineers to finish the project in March 2025.

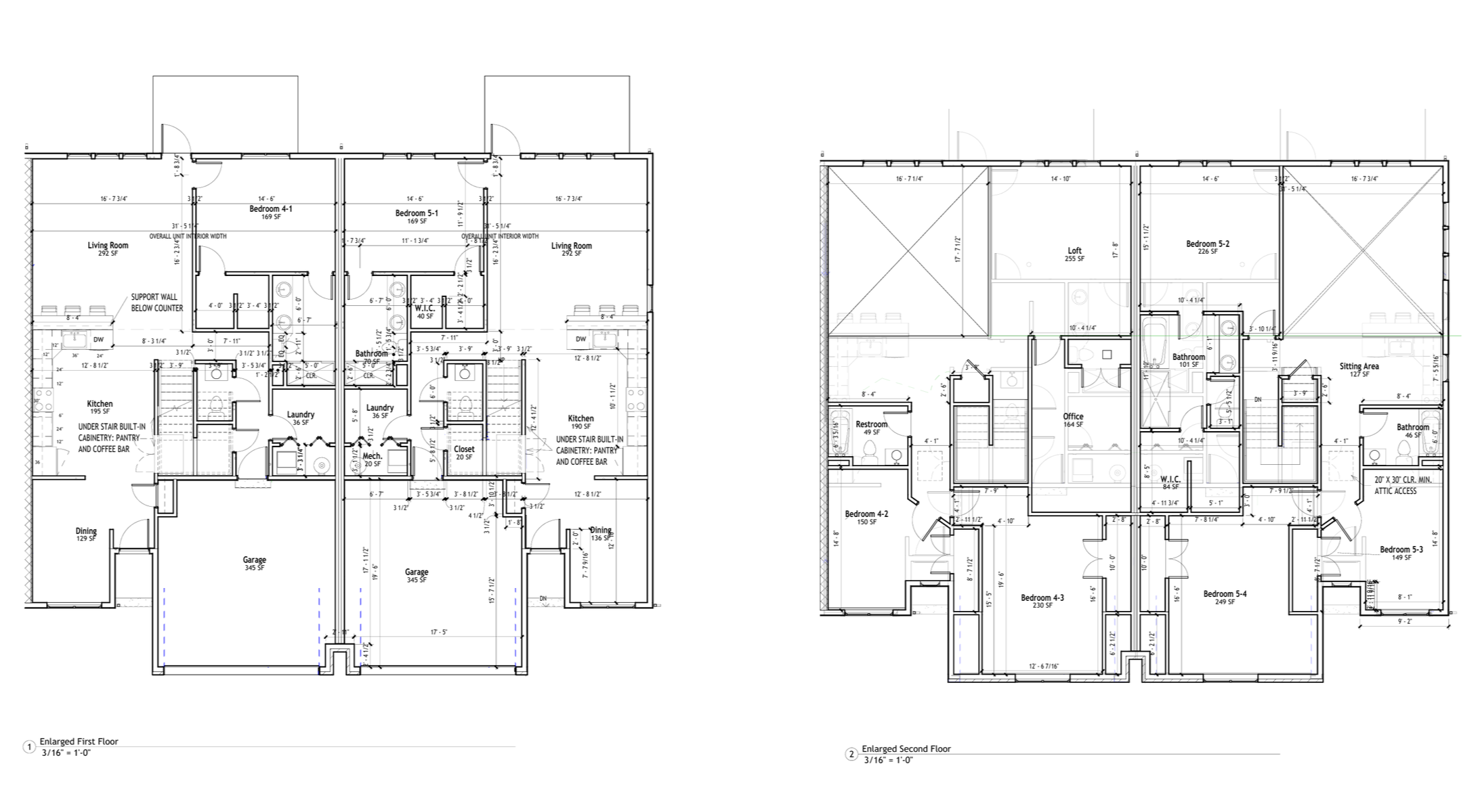
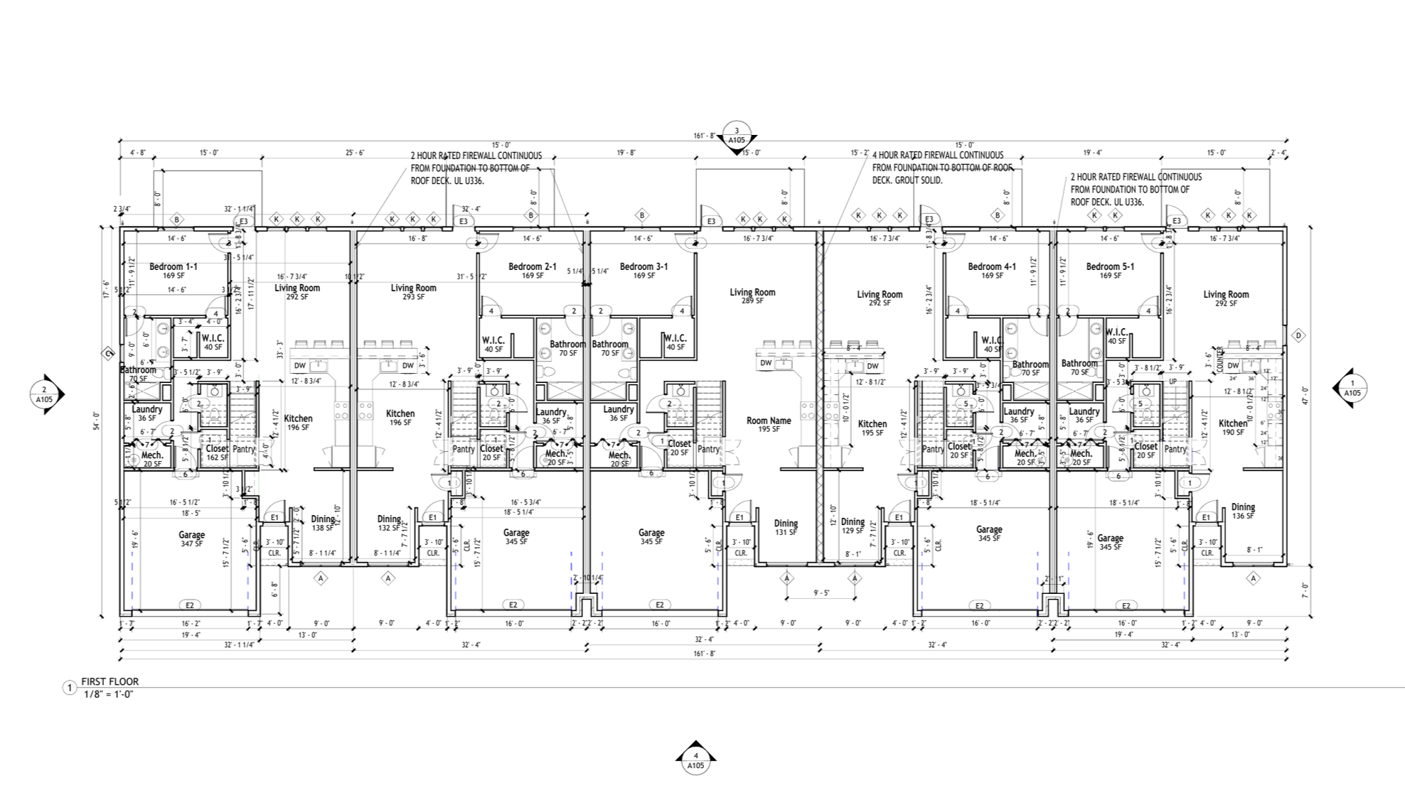
Briar Ridge Townhomes - Westlake, OH

This custom home was built for a client in Waite Hill, Ohio with WellyPatt Engineering responsible for the full MEP design from start to finish. From lighting, controls, networking, and panel schedules to HVAC and plumbing we handled it all. This project incorporated a dedicated whole-home generator for backup power as well as EV chargers in the garage. We welcome custom home projects of all sizes and take pride in helping our clients design their home to suit their exact needs.

Custom Built Home - Waite Hill, OH

WellyPatt Engineering provided MEP design services for the full remodel of the Briar Ridge Townhomes which are located in Westlake, Ohio. This was a 5 unit, 10,000+ sq ft remodel that required full MEP design and was completed in June of 2025. WellyPatt Engineering  collaborated with Amy Kunkle Architect + Development on the remodel of the Briar Ridge Townhomes.

This custom home was designed in collaboration with Amy Kunkle Architect + Development. We were responsible for the entire MEP design on this build. This project included some unique design elements including geothermal & in-floor radiant heat along with dual EV chargers as well as a whole home backup generator. The design phase for this project was completed in February of 2025. 

Custom Built Home - Hiram, OH